INGENIEURGESELLSCHAFT SANDER & SCHNEIDER GbR
WOHNUNGSBAU • GEWERBEBAU • INDUSTRIEBAU
Tragwerksplanung • Baubetreuung • Ausführungsplanung • Bauphysik • Gutachterliche Stellungnahmen
Startseite
Team
Firmenprofil
Stellenanzeige
Kontakt
Impressum
Objekte 2013
Wohnungsbau
öffentl. Bauten
Industriebau
Objekte 2012
Wohnungsbau
Gewerbebau
Elmshorner Straße
Sanmannreihe TG
Dannenkamp
Umbau Bürohaus
öffentl. Bauten
Industriebau
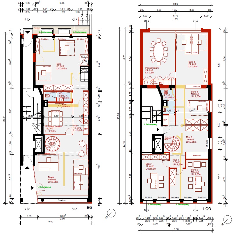
Teilaufstockung und Umbau eines Bürohauses
Architekt:
meyer terhorst architekten
(www.meyerterhorst.de)
Zeichnungen: © meyer terhorst architekten
Unsere Leistungen:
Tragwerksplanung