INGENIEURGESELLSCHAFT SANDER & SCHNEIDER GbR
WOHNUNGSBAU • GEWERBEBAU • INDUSTRIEBAU
Tragwerksplanung • Baubetreuung • Ausführungsplanung • Bauphysik • Gutachterliche Stellungnahmen

Geschwister-Scholl-Straße 157, 20251 Hamburg

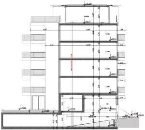
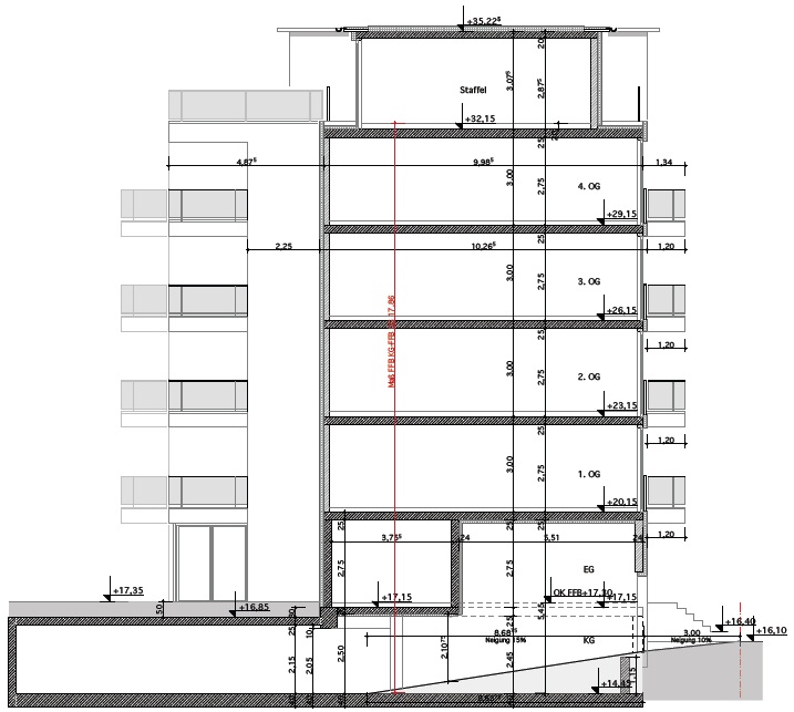
Neubau eines Mehrfamilienhauses mit Tiefgarage

 
  Geschwister-Scholl-Straße 3
 
 
 
 
 
 
 
 
 
 
 
 
 
 
 
 
 
 
 
 
 
Bauherr:
Grundstücksgesellschaft
Geschwister-Scholl-Straße 157 GmbH & Co KG

Projektsteuerer:
Torhaus Projektentwicklung GmbH & Co KG Torhaus Projektentwicklung GmbH & Co KG

Architekt:
Architekturbüro P-S-A GmbH
Zeichnungen: © P-S-A GmbH

Rohbaufirma:
Wachsmuth & Ziesche
Bauunternehmung GmbH
Wachsmuth & Ziesche
 


Unsere Leistungen:

Tragwerksplanung

Bauphysik

Baubetreuung

Erstellung Schal.-und Bewehrungspläne
 
 
 
 
 
 
 
 
Geschwister-Scholl-Straße